LA MEJOR OPCIÓN EN EL SECTOR INMOBILIARIO DE LUJO

SOTOMORA alquila exclusivo piso en Almagro

  • €7,400
  • 110550339
  • ID de propiedad
  • 1.Vivienda
  • Tipo de propiedad
  • 5
  • Habitaciones
  • 4
  • Baños
  • 370
Alquilar
SOTOMORA alquila exclusivo piso en Almagro
  • €7,400

Descripción

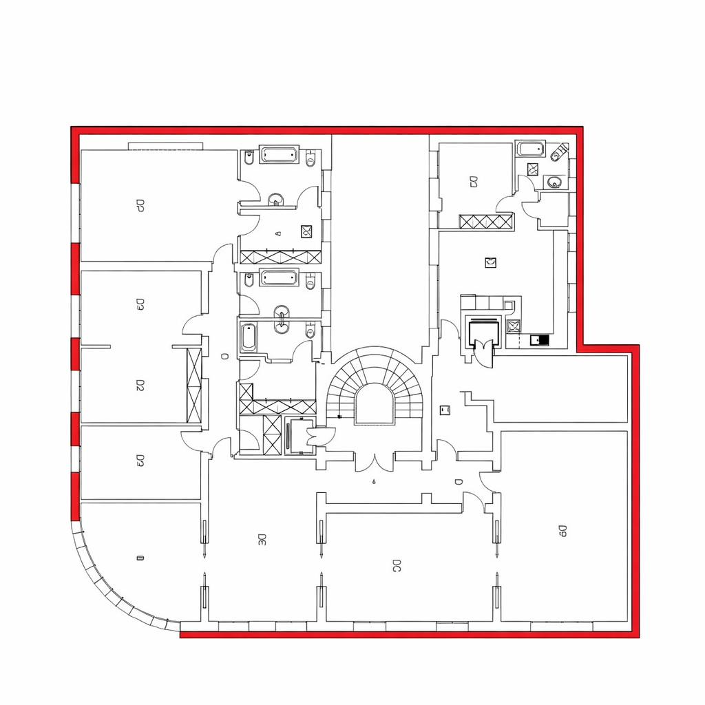
Sotomora Real Estate ofrece este fantástico piso situado entre Colón y Génova. Nuestro piso se encuentra en la última planta de un edificio señorial, ubicado en una de las mejores zonas de Madrid, con un portal representativo con mármol, espejos y ascensor de época.

La vivienda de 355 m² es muy luminosa y soleada al hacer esquina y ser totalmente exterior. Dispone de dos terrazas, una con acceso desde el comedor y otra con acceso desde 3 de los dormitorios.

Nada más entrar hay un gran recibidor que conduce a los salones, a la zona de servicio y el gran comedor. Y un aseo de invitados.

La cocina es muy amplia, tiene ventilación cruzada, cuenta con mucha capacidad de almacenaje, despensa, entrada independiente y cuarto de servicio con baño completo. Tiene entrada de servicio y dormitorio con baño completo.

Uno de los salones hace esquina y tiene preciosos ventanales en curva con unas vistas espectaculares de Madrid.

La zona de noche consta de 4 dormitorios con armarios empotrados.
El dormitorio principal es muy amplio y tiene el baño y el vestidor en suite.
Un segundo dormitorio tambié. Con su baño en suite.
Y 2 dormitorios más que comparten cuarto de baño.

La vivienda tiene techos de 3,3m de altura, tarima y ventanas climalit blindadas. La calefacción es central y está incluida en el precio. Tiene aire acondicionado por conductos con dos zonas separadas (de día y servicio y noche). Cabe destacar la gran seguridad de la que goza la propiedad debido a su estratégica ubicación.

MUCHAS DE NUESTRAS PROPIEDADES NO ESTÁN EN IDEALISTA POR EXPRESO DESEO DE LOS PROPIETARIOS. CONSULTE NUESTRA WEB DE ” SOTOMORA. COM ” PARA VER NUESTRO CATÁLOGO COMPLETO DE VIVIENDAS. No dude en solicitar una visita estaremos encantados de ayudarle.

Detalles

Actualizado en febrero 5, 2026 a 4:14 pm
  • ID de propiedad: 110550339
  • Precio: €7,400
  • Tamaño de propiedad: 370 m²
  • Habitaciones: 5
  • Baños: 4
  • Tipo de propiedad: 1.Vivienda
  • Property Status: Alquilar

Comparar listados

Comparar
SOTOMO_Admin
  • SOTOMO_Admin